Uitgelicht
Bouwwerken
Interieur kantoren
Interieur residentieel
Wie zijn we
Publicaties
Contact
Uitgelicht
Bouwwerken
Interieur kantoren
Interieur residentieel
Wie zijn we
Publicaties
Contact
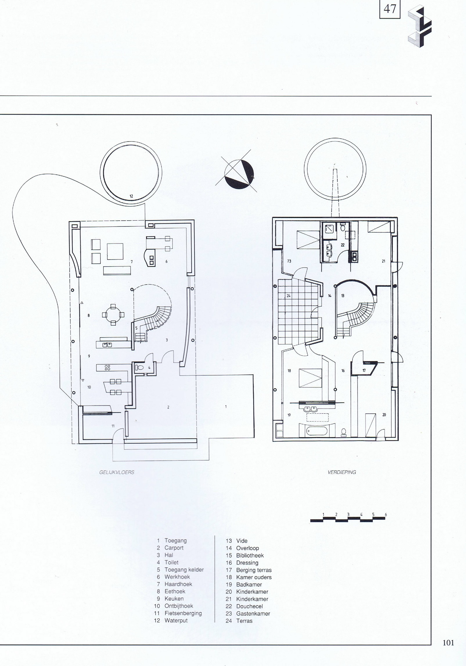
Konfrontaties in Moderne Architectuur
Woning Bijttebier
2006
Een "promenade" in en rond Kortrijk
Kortrijk,1990, p.100-101.
★
Deze villa is aangeduid als vastgesteld bouwkundig erfgoed
★
Deze vaststelling is geldig sedert 24-09-2009 tot heden.
(https://inventaris.onroerenderfgoed.be/aanduidingsobjecten/66346)
Meer publicaties over realisaties van Aard-architects
Bouwen aan Vlaanderen
Familiebedrijf Quartier neemt intrek in nieuwe gebouwen
Guide architecture moderne et contemporaine
Maison Maertens-Ysebaert / Maison Baudry
Architectuurboek: Regards & Paroles d’Architectures
Recherche de la forme pure
Konfrontaties in Moderne Architectuur
Woning Vanslembrouck
Atlas Weekblad
Familiebedrijf Quartier neemt intrek in nieuwe gebouwen
Karaat
Een woning als een witte sculptuur
Ik Ga Bouwen
Met de rug naar de straat
NAV
'Technisch huzarenstukje op bouwbeurs Roeselare' -
Ik Ga Bouwen 1996
Architectuur en Design
Marie Claire Maison
Maison de lumière
↑
Back to Top